Berrien County High School
 
  Home » Georgia FFA Association » Equipment & Facilities  
     
     
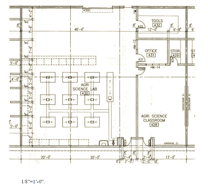
Berrien County High School Agriscience Facility
*This 3600 square foot facility contains a classroom, laboratory and office space.
*The Berrien County Agri-Science Lab consists of 3600 square feet with an office and storage room for equipment and a separate classroom. The lab is equipped with science type lab tables with water and gas available for experiments. This lab is set-up to provide opportunities to teach any area of agri-science that may be appropriate.

     







   

   
 
     
     
     
 


Georgia Agricultural Education


Curriculum & SAE   FFA      GVATA   Young Farmers   Foundation   Alumni   FFA Camps  


Copyright Georgia Agricultural Education © 2026. All rights reserved.     |    Privacy Policy
Website designed by Wieghat Graphics, Inc.    |    Sign In



  CONNECT WITH US  
     
   
     
  FOLLOW US ON FACEBOOK